ReRoom

客厅,
波希米亚绿洲
原始图片
Source Image
上传于
生成图片(960x768)
source
3.75%
Result Images
Result Images
Result Images

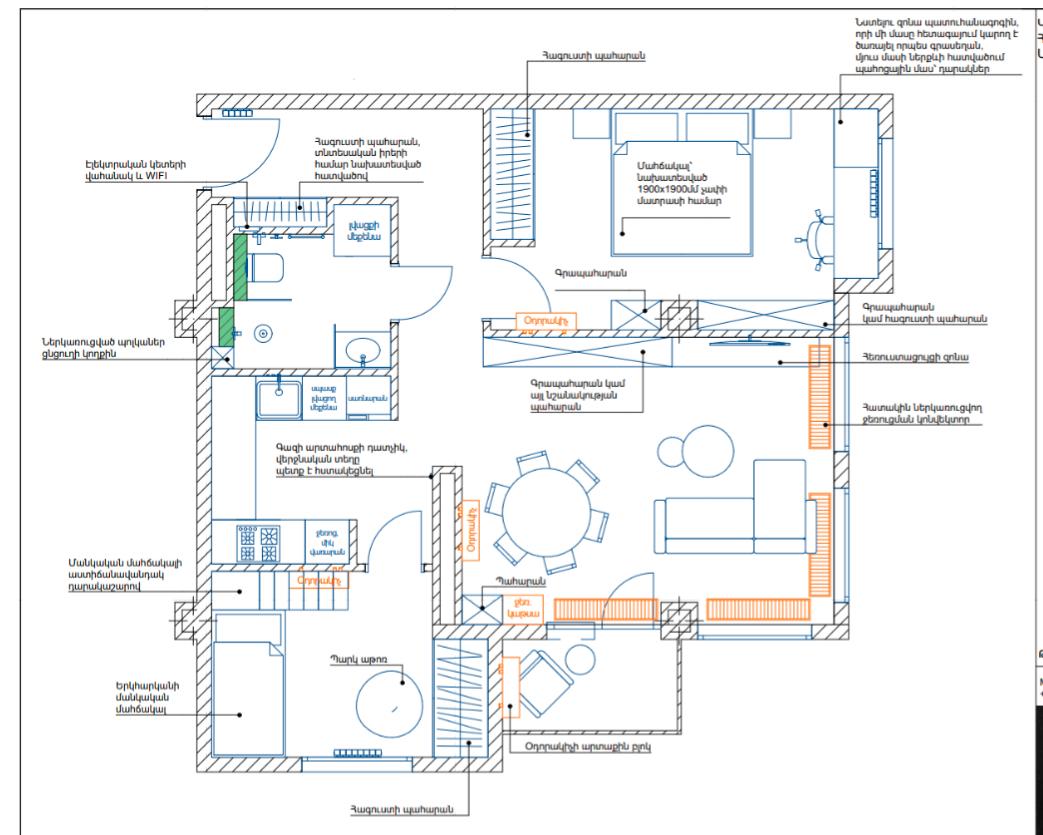
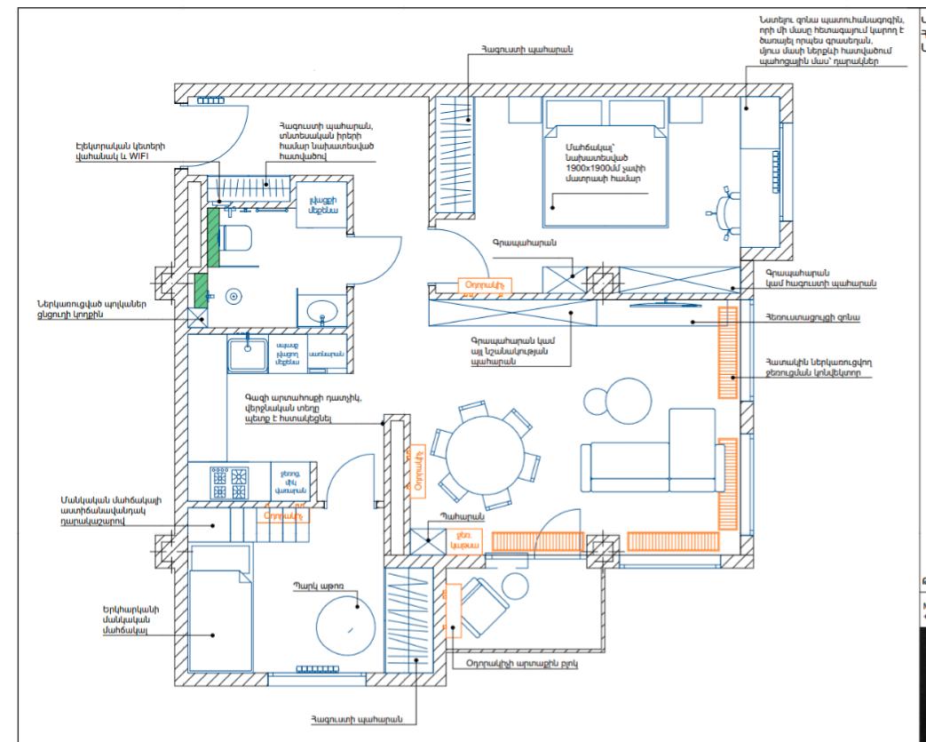
An incredibly lifelike, richly detailed, photorealistic floorplan photo of an apartment layout set in a vibrant spring environment. The scene is illuminated by bright midday light, creating a warm and inviting atmosphere. Captured with a wide-angle lens, emphasizing the spaciousness and flow of interconnected rooms, this image showcases a bohemian oasis with an eclectic style. The living room, the heart of the space, features a comfortable-looking sofa and armchairs arranged around a central coffee table, hinting at a lived-in, relaxed vibe. Dining area features sleek, modern chairs around a circular table perfect for intimate gatherings. The bedroom, rendered with clean lines, suggests a serene retreat, while hints of orange accents in the entryway and living area add pops of color and energy to the scene, blending functionality with a bohemian aesthetic. The overall composition is well-balanced, guiding the viewer's eye through the various zones of the apartment while maintaining a sense of cohesive design; textures range from the subtle grain of wood flooring to the imagined softness of textiles, all rendered with exquisite detail.