ReRoom

客厅,
当代优雅
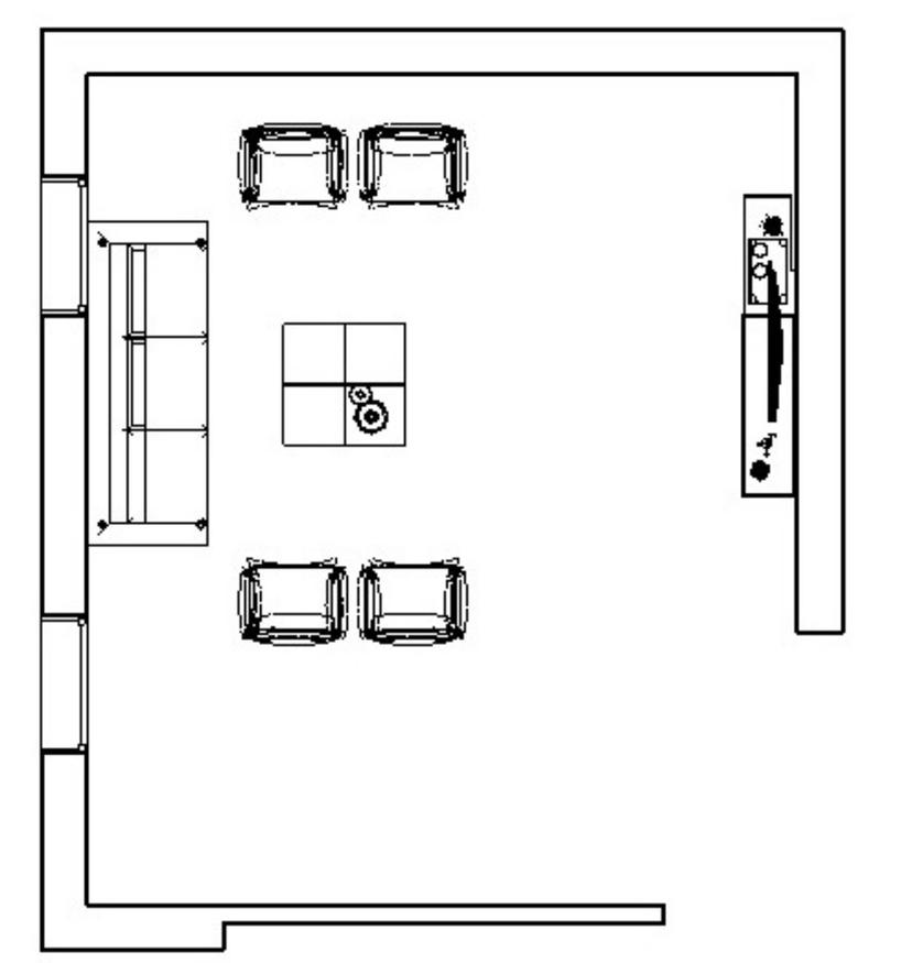
原始图片
Source Image
上传于
生成图片(768x816)
source
3.48%
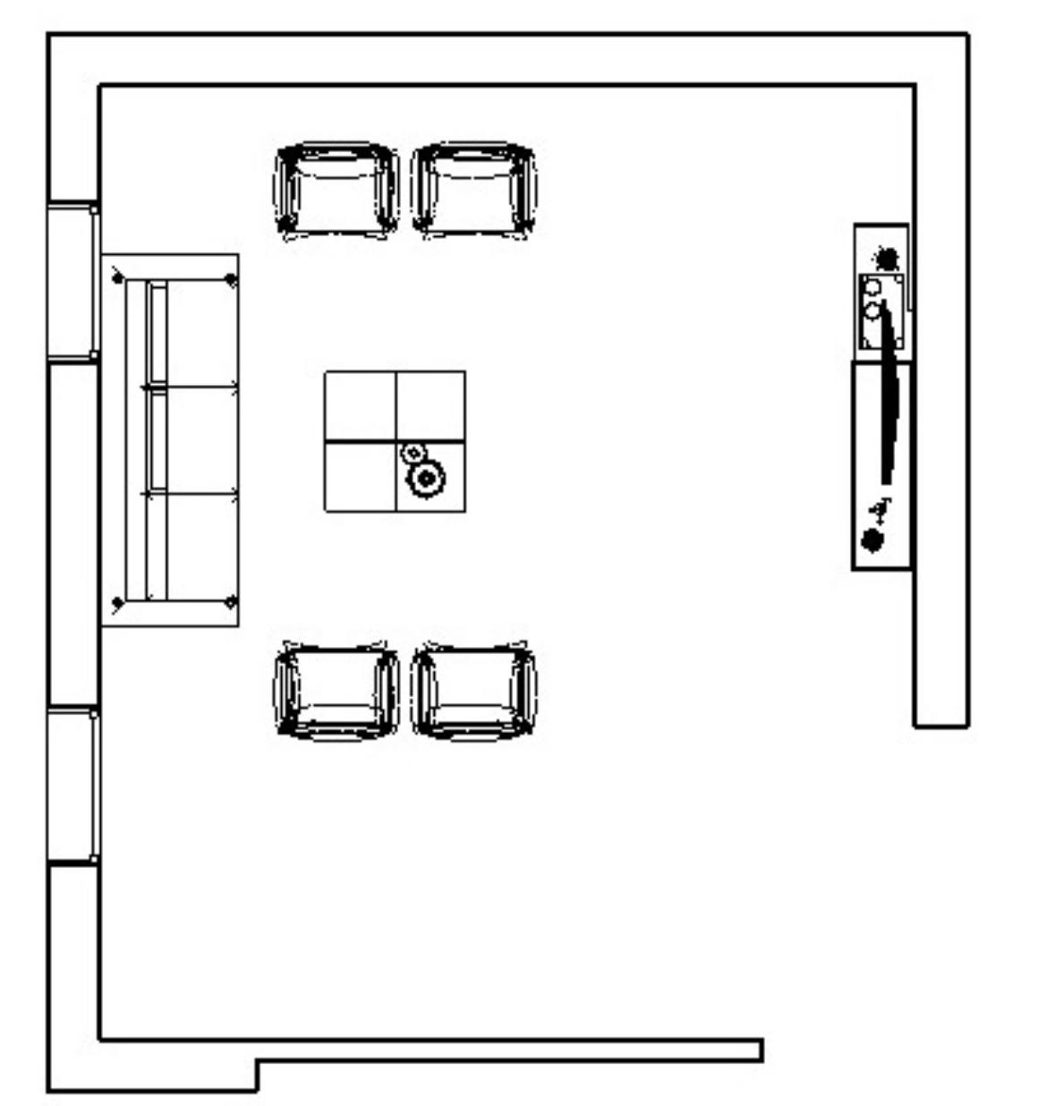
Result Images
Result Images
Result Images

An incredibly lifelike, richly detailed, photorealistic floorplan photo of a contemporary living room set in an elegant urban apartment. The scene is illuminated by the soft, warm glow of a sunset, casting long shadows and creating an intimate, cozy atmosphere. Captured with a wide-angle lens, emphasizing the spaciousness and clean lines of the room, this shot highlights the crisp white, glittering furniture arranged for a welcoming, modern feel. The composition focuses on a sleek white sofa on the left, complemented by four matching armchairs symmetrically placed around a minimalist white coffee table. A tall, white entertainment unit, adorned with subtle metallic accents, stands against the far wall, adding a touch of sophistication. The floor appears to be a polished, light-colored hardwood, reflecting the ambient light. Subtle hints of autumnal decor, perhaps a single minimalist vase with dry branches on the coffee table, suggest the season. The overall impression is one of serene, contemporary elegance, with every element contributing to a harmonious and luxurious living space.